Banner
HomeTOCPrevNextGlossSearchHelp

PDF

Table of Contents

STRATM Cabinet

STRATM Cabinet

STRATM Cabinet

This appendix illustrates typical cable management and space requirements for various system configurations in the STRATM cabinet. It also contains a table with the height of StrataCom components in inches, centimeters, and rack-mount units (RMUs). This can help in the calculation of height requirements for individual setups. The last illustration shows the bracket installation in the STRATM (for a BPX, in this case). The sequence of sections is as follows:

Figure B-1 : Back View of Empty STRATM Cabinet

h8215.gif

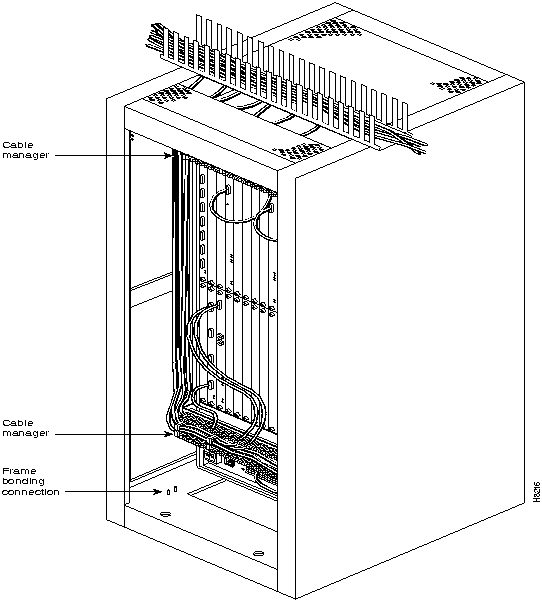
Figure B-2 : Typical Cable Management, IGX-32 in STRATM Cabinet

h8216.gif

Figure B-3 : Typical Stacking Order, Single BPX, DC and AC-Powered

h8217.gif

Figure B-4 : Typical Stacking Order, Single BPX and Single AXIS, DC and AC-Powered

h8218.gif

Figure B-5 : Typical Stacking Order, BPX, AXIS, and INS, DC and AC-Powered

h8219.gif

Figure B-6 : Typical Stacking Order, IGX 32, DC and AC-Powered

h8220.gif

Figure B-7 : Typical Stacking Order, BPX With 2 INS and 3 AXIS, DC Powered

h8221.gif

Figure B-8 : Typical Stacking Order, Six AXIS, DC Powered

h8222.gif

Figure B-9 : Typical Stacking Order, BPX With Three AXIS, DC Powered

h8223.gif

Table B-1 : Table of STRATM Cabinet and Component Heights

Unit Height
Components Inches CM. RMUs
AXIS Card Cage 8.75 22.225 5
AXIS AC Power Supply shelf 5.25 13.335 3
AXIS Booster Fan Assembly 3.5 8.89 2
AXIS Cooling Assembly 5.25 13.335 3
AXIS Exhaust Plenum 3.5 8.89 2
BPX AC Power Supply shelf 5.25 13.335 3
BPX Card Cage 22.75 57.785 13
IGX AC Power Supply shelf 5.25 13.335 3
IGX Booster Fan Assembly 3.5 8.89 2
IGX Card Cage 17.5 44.45 10
IGX Cooling Assembly 5.25 13.335 3
IGX Exhaust Plenum 3.5 8.89 2
IGX-8 24.5 62.23 14
INS 5.5 13.97 4
Inside Height
Cabinet Inches CM. RMUs
STRATM Cabinet 71.75 1822.45 41

Figure B-10 : Mounting Brackets (BPX)

h8224.gif

HomeTOCPrevNextGlossSearchHelp
-

Copyright 1988-1996 © Cisco Systems Inc.