|
|
Before you install the system, verify that all of the required parts are present and in good condition. If anything is missing or damaged, contact Customer Service.
Check the cabinet for the following inventory:
_____ | For rack-mount systems, four permanent mounting brackets are present. Also, for installation purposes only, a pair of temporary mounting brackets and a temporary spacer bracket are present. |
|---|---|
| _____ | The unit has the correct power type (AC or DC) and the factory-installed Power Entry Back Card (PE-BC). For DC-powered systems, DC Power Entry Modules (PEMs) are installed in the PE-BC. For AC systems, check for the power supply tray, correct power cord, and correct number of supplies. |
Check the cabinet for the following inventory:
_____ | [IGX 16/32 enclosures] The unit has the correct number of card cages (1 or 2). |
|---|---|
| _____ | The unit has the correct power type (AC or DC) and the factory-installed Power Entry Back Cards (PE-BC), one per shelf. For DC-powered systems, DC PEMs are factory-installed in each PE-BC. For an AC system, check for the power supply tray and correct number of power supplies and cables. |
Make sure all purchased cards are present. Check the number and type of cards shipped against the number and type of card purchased. In the following list, the column on the left lists the front cards. The column on the right lists the possible corresponding back cards.
An inventory list of the installed cards is shipped with the unit. The list includes each card's serial number, revision number, and slot number (serial and revision numbers are also found on the solder side of each card). Check for the presence of any other items on the shipping list. After verifying that the correct cards are present, tape a copy of the inventory list to the back of this manual.
| ____ | Correct number and types of NPMs | ____ | One SCM |
| ____ | Correct number of NTMs | ____
____ ____ ____ | Correct number of BC-T1s
Correct number of BC-E1s Correct number of BC-Y1s Correct number of BC-SRs |
| ____ | Correct number of BTMs | ____
____ ____ ____ ____ | Correct number of AIT-T3s
Correct number of AIT-E3s Correct number of AIT-T2s Correct number of AIT-HSSIs Correct number of BTI-E1s |
| ____ | Correct number of ALMs | ____
____ | Correct number of BC-UAI-1T3s
Correct number of BC-UAI-1E3s |
| ____ | Correct number and types of UVMs | ____
____ ____ | Correct number of BC-UVI-2E1ECs
Correct number of BC-UVI-2J1ECs Correct number of BC-UVI-2T1ECs |
| ____ | Correct number and types of CVMs | ____
____ ____ | Correct number of BC-E1s
Correct number of BC-J1s Correct number of BC-T1s |
| ____ | Correct number of UFM-Cs | ____
____ ____ | Correct number of UFI-8T1-DB15s
Correct number of UFI-8E1-DB15s Correct number of UFI-8E1-BNCs |
| ____ | Correct number of UFM-Us | ____
____ ____ | Correct number of UFI-12-V35s
Correct number of UFI-12-X21s Correct number of UFI-4-HSSIs |
| ____ | Correct number and types of FRMs (including FRM-2s) | ____
____ ____ ____ ____ | Correct number of FRI-T1s
Correct number of FRI-E1s Correct number of FRI-X.21s Correct number of FRI-V.35 Correct number of FRI-2-X.21s |
| ____ | Correct number of FTMs | ____ | Correct number of FPCs |
| ____ | Correct number of HDMs | ____ | Correct number of SDIs |
| ____ | Correct number of LDMs | ____ | Correct number of LDIs |
| ____ | Correct number of ARMs | ____ | Correct number of ARIs |
| ____ | ____ | Blank faceplates for unused back card slots |
The site must satisfy the following requirements:
To provide some protection against seismic activity, the feet and wheels of the IGX stand-alone cabinets can be removed to permit the cabinet to be bolted to a concrete floor or to a structural member in the floor.
In STRATM cabinets, provisions are available for seismic anchoring. Holes exist in the upper and lower corners for 3/8" or 1/2" bolts. Also, an optional stability plate can be purchased with the STRATM cabinet. The stability plate is bolted to the floor, then the STRATM cabinet is bolted to the stability plate. The "Seismic Anchoring for the STRATM Cabinet " section contains instructions for installing the seismic stability plate.
The following paragraphs contain general safety information and information on T1 and CEPT (E1) safety requirements.
![]() | Warning The following safety requirements must be observed: |
This section lists the requirements that relate to electrical power and grounding. These requirements cover installations at Central Office (CO) and Private Enterprise locations.
For an AC-powered system, verify that the node's power comes from a dedicated AC branch circuit. The circuit must be protected by a dedicated, two-pole circuit breaker. The circuit breaker must have a rated current and trip delay that is greater than those of the IGX circuit breaker. Cisco Systems recommends the following:
The IGX 16 and IGX 32 nodes use a 20A, 2-pole circuit breaker for each AC input. The manufacturer of this circuit breaker is ETA, and the ETA part number for the circuit breaker is 8340-F120-P1P2-B2H020A. The IGX 8 node uses a 15A, 2-pole AC circuit breaker on each input. This circuit breaker comes from either ETA (part number 8340-F120-P1P2-B2H015A) or Airpax (part number IEGH11-1-62-15.0-91V).
For a DC-powered system, verify that the node's power comes from a dedicated DC branch circuit. The circuit must be protected by a dedicated circuit breaker. The circuit breaker must have a rated current and trip delay that is greater than those of the IGX circuit breaker. Cisco Systems recommends the site have a dedicated 25A, 1-pole circuit breaker with a medium trip delay at each branch circuit.
The DC-powered nodes use a 25A, 1-pole circuit breaker with a short trip delay on each -48V input. The manufacturer of this circuit breaker is ETA, and the ETA part number is 8340F110P1K1A2H00025.
An AC power source must be available within 6 feet (1.8 m) of the system and easily accessible. Before turning on the power, verify that the power supplied to the node comes from a dedicated branch circuit.
The power receptacles to which the node connects must be of the grounding type. The grounding conductors that connect to the receptacles should connect to protective earth at the service equipment.
Only a -48 VDC supply that complies with the Safety Extra Low Voltage (SELV) requirements of EN 60950 can connect to the IGX DC input.
For DC supply connections, consult local and/or national codes for proper conductor sizing. The conductors must be suitable for 20 Amps. Wiring that is 10 to 12 AWG (4 sq. mm) is adequate.
To maintain the full EMI and EMC integrity of this equipment, it must be bonded to an Integrated Ground Plane or an Isolated Ground Plane network. The purpose of this is to mitigate the damaging effects to equipment from Electrostatic Discharge and Lightning. Refer to the latest edition of ITU Recommendation K.27 or Bellcore GR-1089-CORE requirements to ensure that the correct Bonding and Grounding procedures are followed. As recommended in these documents, a frame bonding connection is provided on the StrataCom STRATM cabinet for rack-mounted systems and on the stand-alone cabinets.
Refer to "Making the Frame Bonding (Ground) Connection " later in this chapter for information on the locations of the frame bonding connections and how to make a connection.
Except for the AC power supply module, every module in a rack-mount system relies on the rack itself for grounding. Therefore, the rack must be properly connected to protective earth before operating the system.
A DC-powered IGX node must have grounding conductors that connect at two separate locations, as follows:
These requirements may be relevant to a private network connected to the public switched networks in some international service areas.
This section describes installing the STRATM cabinet with the optional stability plate for seismic anchoring. If the stability plate is not present, go to the next section. To set up the STRATM cabinet with the stability plate:
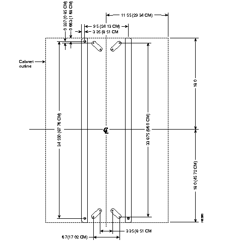
Step 1 Use the dimensions in Figure 2-1 to drill the holes for installing the stability plate.
Step 2 Remove the stability plate from the base of the STRATM cabinet. Save these nuts and bolts.
Step 3 With the user-provided anchoring bolts, attach the stability plate to the floor.
Step 4 Roll the STRATM cabinet over the stability plate as Figure 2-2 illustrates.
Step 5 Using the nuts and bolts from the shipping setup, secure the STRATM cabinet to the stability plate.


Installing an IGX 8 node requires the following tools and equipment:
The installation steps consist of placing the stand-alone IGX 8 node at its operating location, unpacking it, and verifying the integrity of the enclosure and power connections. Note that the cabinet is 19.9" wide.
After the system is at its operational location, follow the steps for connecting power. If the system has an AC power source, go to "AC Power Connections" section. If the system has a DC power source, go to the "DC Power Connections" section.
The rack-mount IGX 8 fits in a 19 inch (48.25 cm.) rack with a minimum of 17.75 inches between rails. For mounting the chassis in a rack, brackets are attached to the front of the chassis. A pair of mounting brackets are attached at the back of the chassis after it is placed in the rack. Brackets for a mid-rack mounting also come with the kit.
Because of the weight of the IGX 8, StrataCom includes two temporary spacer brackets and a temporary mounting bracket to help with the installation. These pieces are removed after installation. The temporary spacer brackets stabilizes the rack, and the temporary mounting bracket together with the spacer brackets creates a partial shelf onto which the installers can slide the node. These pieces support the system while installers secure the permanent front and back mounting brackets to the rack.
![]() | Caution If an IGX is mounted in a cabinet, be sure an unrestricted air flow is available in and out of the enclosure. |
Step 1 Decide the IGX 8 position in the rack. See Figure 2-3 for external dimensions. Note that the vertical spacing between the IGX 8 and other components, such as a BPX or AXIS shelf, must be in the range .047" to .077" (0.119 cm to 0.196 cm).
Step 2 At the front of the rack, attach the temporary spacer bracket and temporary mounting brackets so that the uppermost portion of these pieces are at the bottom of the intended location of the IGX 8. Figure 2-4 shows a temporary spacer and mounting bracket in a STRATM cabinet.

![]() | Caution If moving a STRATM cabinet is necessary for installing the IGX 8, do not push the cabinet at its sides. Instead, grip the cabinet at the front or back edges to maneuver it to the setup location. |
Step 3 Position the IGX 8 in front of the cabinet. This position should be such that the back of the IGX card cage faces the front of the rack. If not already done, remove the foam strips from the sides, front, and back.
Step 4 Remove the attached mounting brackets (filler plates) for the stand-alone version. The mounting brackets for the rack-mount go in these places. See Figure 2-5 for the locations of the mounting brackets.

Step 5 Attach the front mounting brackets to the IGX 8.
![]() | Caution An IGX 8 requires a 2 or 3-person lift to put it in the rack. |
Step 6 This step requires one person on each side of the IGX card cage. Lift and slide the card cage into the rack at the front of the rack. Slide the IGX 8 to the back and rest the rear of the system on the temporary mounting brackets and spacer.
Step 7 Secure the front bracket (or mid-mount bracket) to the rack. The mid-mount brackets require the threaded rolling screws which the IGX 8 kit includes. Attach the IGX 8 to the rack with eight #10-32 machine screws.

![]() | Caution Make sure that mounting the equipment does not create a hazardous condition due to uneven mechanical loading. The equipment rack should be securely supported. |
Step 8 Attach the permanent rear mounting brackets to the rack.
Step 9 Remove the temporary mounting brackets and temporary spacer bracket.
Step 10 If this is a DC-powered system, go to "DC Power Connections" section.
Step 11 Go to the procedures in the chapter titled "Card Installation and Node Startup."
Installing an IGX requires the following tools and equipment:
Rack-mount systems come with the parts described in the assembly instructions.
StrataCom stand-alone systems come with all components installed in the cabinet. So, the installation steps consist of placing the unit at its operational location, unpacking it, and verifying the structural and power connection integrity before turning on the power. Note that a stand-alone cabinet is 19.9" wide. The adjustable levelers require a 5/8" wrench. If the system has an AC power source, go to the "AC Power Connections"section. If the system has a DC power source, go to the "DC Power Connections" section.
The rack-mount IGX 16 fits in a 19 inch (48.25 cm.) rack. The front of each assembly has flanges that serve as the front mounting brackets. The assembly kit contains other brackets for different mounting setups. The following order of component installation is the most convenient and efficient. For some of these components, separation sections follow that contain detailed installation steps.
Note that the vertical spacing between components, such as the card cage and fan tray, must be in the range .047" to .077" (0.119 cm to 0.196 cm).
The miscellaneous parts kit for rack systems contains brackets for both a STRATM cabinet and a user-supplied rack. The kit includes mid-mount brackets for open racks.
The rear-mount brackets attach to the rear vertical rail in a STRATM cabinet. Each of these brackets has a horizontal flange upon which the back of each IGX component rests. The front of each assembly chassis has flanges that serve as the front mounting brackets.
![]() | Caution If an IGX is mounted in a user-supplied cabinet, be sure air can flow unrestricted in and out of the cabinet. For assistance, contact the WANBU TRT through Cisco Customer Engineering. |
Step 1 Decide on the IGX location. See Figure 2-6 for dimensions (Figure 2-7 for metric).
![]() | Caution When moving a STRATM cabinet, do not push the cabinet at its sides. Instead, grip its front or back edges. |
Step 2 To install the optional AC power supply kit, do the steps in the "Installing the AC Power Supply Assembly" section later in this chapter.
Step 3 To install the cooling unit, do the steps in the "Installing the Cooling Unit" section later in this chapter.
Step 4 Position the IGX card cage so that the back of it faces the rack.
![]() | Caution An empty IGX card cage weighs 75 pounds (34 Kgs.) and requires a 2 or 3-person lift to move into place. |

Step 5 With one person on each side of the card cage, lift and slide it into the rack.
Step 6 Attach the cabinet to the rack with 8 #10-32 machine screws (from the kit).
Step 7 For system DC-powered systems, see the "DC Power Connections"section. For AC-powered systems, see the section titled "Installing the AC Power Supply Assembly" (later in this chapter.
![]() | Caution Make sure that mounting the equipment does not create a hazardous condition due to uneven mechanical loading. The equipment rack should be securely supported. |
The IGX 32 is designed for mounting in a 19 inch (48.25 cm.) equipment rack. The following order of component installation is the most convenient and efficient. For some of these components, separation sections are named that contain detailed installation steps.
The miscellaneous parts kit contains brackets for rack-mounting in either a STRATM cabinet or a user-supplied rack. The kit includes mid-mount brackets for open racks. For a STRATM cabinet, the rear-mount brackets attach to the rear vertical rail. Each of these brackets has a horizontal flange upon which the back of an individual component rests. The front of each assembly chassis has flanges that serve as front mounting brackets.
![]() | Caution If an IGX goes in a user-supplied cabinet, be sure air can freely flow in and out of the enclosure. Note also that the vertical spacing between components, such as the card cage and fan tray, must be in the range .047" to .077" (0.119 cm to 0.196 cm). |
![]() | Caution When moving a STRATM cabinet, do not push the cabinet at its sides. Instead, grip the front or back edges. |
Step 1 Refer to Figure 2-7 for component dimensions. Note that, although Figure 2-7 shows mid-mount and rear-mount brackets, these brackets are not normally used together.
Step 2 To install the optional AC power supply kit, do the steps in the "Installing the AC Power Supply Assembly" section next.
Step 3 To install the cooling unit, do the steps in the section titled "Installing the Cooling Unit" later in this chapter.
Step 4 Install the brackets for the card cages.
Step 5 Position the IGX card cage so the back of it faces the front of the cabinet.

![]() | Caution An empty card cage requires a 2 or 3-person lift to move. |
Step 6 With one person on each side of the card cage, lift it into the rack. In a STRATM cabinet, rest the back of the card cage on the rear-bracket flange.
When mid-mount brackets are used, screw the card cage to the brackets with #10-32 machine screws from the miscellaneous parts kit.
Step 7 Secure the front of the card cage to the front of the rack with #10-32 machine screws from the miscellaneous parts kit.
![]() | Warning Make sure that mounting the equipment does not create a hazardous condition due to uneven mechanical loading. The equipment rack should be securely supported. |
Step 8 The folded ribbon cables that connect the upper and lower backplanes pass through a cut-out space in the card cages. The cables connect to two, 100-pin connectors on the front of each backplane. See Figure 2-8. If NPM cards are present, these and possibly other front cards need removing prior to ribbon cable installation.
Connect the cable from the upper connector of the upper backplane to the upper connector in the lower backplane.
Connect the cable from the lower connector of the upper backplane to the lower connector in the lower backplane.
Step 9 A two-piece conduit called the card cage tunnel surrounds the ribbon cables and sits in the cut-out space of the card cages. Fit the pieces of the card cage tunnel around the ribbon cables and screw this unified piece into the cut-out space. Figure 2-8 shows the card cage tunnel in its normal location and prior to assembly.
Step 10 Slip the ribbon cables through the fastener clamps, then attach the fastener clamps (which include a self-adhesive base) to the side of the card cage. See Figure 2-8.
Step 11 If this is an AC-powered system, do the procedures in the section titled "Installing the AC Power Supply Assembly." It appears later in this chapter.
Step 12 If this is a DC-powered system, go to the section titled "DC Power Connections" It appears later in this chapter.

If the IGX 16 or 32 uses an AC power source, proceed with this section. In a rack-mount system, the AC Power Supply Assembly is shipped separately (as are all the other assemblies). The first assembly to install in a rack-mount system is the AC power supply assembly.
The AC power supply assembly consists of the following items:
Power supply installation or replacement requires the following tools:
The setup for power supplies depends on the number of AC power inputs, the IGX model, and the number of cards in the system. The minimum configuration is one AC source and one supply. This minimum number applies to the IGX 16: with 12 or fewer cards, 1 supply is enough. Figure 2-9 illustrates the alphanumeric slot designations in a full tray. The paragraphs that follow refer to these designations.

Two types of redundancy exist in the AC power supply configuration. One redundancy is that of AC power inputs. A redundant AC power source from a building circuit that is separate from the other AC circuit provides backup if one AC circuit at the site fails. The other redundancy is that of the 875-Watt power supply modules. Redundancy of the 875-Watt supplies provides a backup if a supply fails.
In supporting the two types of redundancy, power supply arrangements differ, as follows:
Table 2-1 shows the required number of power supplies for the different IGX systems. In Table 2-1 , the locations for primary (or minimal) power supplies are marked with an X. The primary supplies reflect redundancy of AC inputs and backup supplies. An O indicates a slot that must have a supply because the card cage contains more than 12 cards.
In Table 2-1 , the System column lists the IGX model number coupled with the number of AC inputs and whether the single-AC input models have power supply redundancy. The table also shows the slot locations A through F and the part number of the kit that contains all the pieces for the item in the System column. Extra supplies for more than 12 cards (O) are not a part of a kit under Kit Part No. but have another part number. The part number of a supply ordered to fill extra power demands is IGX-AC-PS.
| System | A | B | C | D | E | F | Kit Part No. |
|---|---|---|---|---|---|---|---|
| IGX 16: 1 AC input, no power supply redundancy | X | O | IGX16-AC1-1 | ||||
| IGX 16: 1 AC input, with power supply redundancy | X | X | O | IGX16-AC2-1 | |||
| IGX 16: 2 AC inputs | X | O | X | O | IGX16-AC2-2 | ||
| IGX 32:1 AC input, no power supply redundancy | X | X | O | IGX32-AC2-1 | |||
| IGX 32: 1 AC input, with power supply redundancy | X | X | X | O | IGX32-AC4-1 | ||
| IGX 32: 2 AC inputs | X | X | O | X | X | O | IGX32-AC4-2 |
Note that, with all power supply configurations, locations for the power supplies begin at the lowest lettered slot on either side, and the occupied positions are contiguous. For example, in a dual AC system, insert a supply in A, B, D, and E.
The procedures in this section apply to both the IGX 16 and the IGX 32 in a rack. (For stand-alone systems, the power supplies are already installed.) To replace a power supply, follow the steps in the chapter titled "Repair and Replacement."
Step 1 Attach the mounting brackets to the frame. For illustrative purposes, Figure 2-10 shows mounting brackets at mid-frame and the back (using rear and mid-mount brackets is not a likely configuration). In this view of the cabinet, the rear bracket shown is labeled with a -00. Brackets on the other side of the system a -01.

Step 2 This step may require more than one person. If rear-mount brackets are used, slide in the power supply tray so its back rests on the rear bracket.
For a mid-mount rack only, attach the tray to the mounting brackets with the head of each mounting screw on the inside of the tray and each associated nut on the outside of the bracket.
Step 3 Secure the front of the power supply tray with the front screws. When tightening each of the front screws, hold the adjacent front flange of the tray slightly to the outside so the hinged door can freely open and close. See "Front Flange" in Figure 2-10. The space between the right-angle edge of the flange and the edge of the hinged door should be approximately the width of a thumbnail.
Step 4 Install the power supplies. See Figure 2-11 for an illustration of a power supply. When a power supply almost reaches the end of the slot in the tray, a slight resistance is encountered. Push the power supply slightly farther in to achieve the final position and full connector mating.
Step 5 At the front of each supply, secure the supply to the tray by tightening the captive screw at the bottom/front of the supply.

Step 6 For slots without a power supply, the hinged door has a removable, dummy panel.
Step 7 Close the hinged door and secure it with the screw at the top-center of the door. For the next step, refer to Figure 2-12, Figure 2-13, and Figure 2-14.
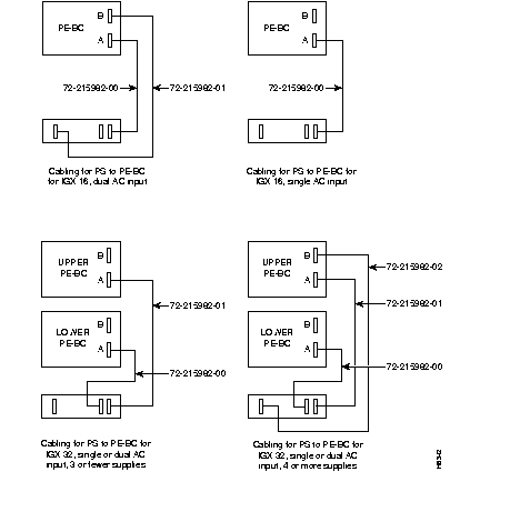
Step 8 Connect the power cables according to the applicable AC configuration shown in Figure 2-12. The cables in Figure 2-12 differ only in length: pinouts are identical. Attach cable 215982-01 from the far right connector--labeled A 1-16 in Figure 2-13--to the lower connector on the upper PE-BC. Figure 2-14 shows where system power connects to the PE-BC. It also shows the blank plate over an unused connection. If power supply trays D-F contain one or more supplies, run cable 215982-02 from the connector on the far left (B 1-16) to the upper connector on the PE-BC. See Figure 2-12 and Figure 2-13. For an IGX 32, run cable 215982-00 from the connector labeled 17-32 to the lower connector on the lower PE-BC.
Step 9 Attach the cable guard and tighten the captive screw at its base.
Step 10 Go to the "Installing the Cooling Unit" section.



This section describes how to install the main fan tray (Fan Tray 1) in an IGX 16 and 32 and the upper or booster fan tray (Fan Tray 2) in an IGX 32. Figure 2-15 shows the main fan tray. Figure 2-16 shows the locations of Fan Tray 1 and Fan Tray 2 in an IGX 32.

Two cables exist for supplying power to the fans. The short fan power cable is used in both the IGX 16 and the IGX 32. The long "Y" cable is used in the IGX 32 only. See Figure 2-16. In an IGX 16, the short cable connects to connector "Fan 1" of the PE-BC.
In an IGX 32, the short cable goes from the "Fan 2" connector of the upper PE-BC to the power connectors on Fan Tray 2. One branch of the Y cable for Fan Tray 1 is significantly longer than the other branch. The longer branch connects to the "Fan 1" connector of the upper PE-BC. The shorter branch connects to the "Fan 1" connector of the lower PE-BC.
To install the cooling unit assembly:
Step 1 Examine the front and back of the fan tray to be familiar with the setup. Note that, for the bottom fan tray, the captive screws that secure the fan tray are in the front. For the booster fan tray, the captive screws reside at the back of the cabinet.
Step 2 Slide in the cooling unit. and secure it by tightening the four rack screws.
Step 3 On the PE-BCs, plug each D-connector of the appropriate fan power cable into the appropriate PE-BC connector.
Step 4 Plug the power connectors into the fan trays. At the power receptacles on each fan tray, the power connector is a latched housing. Plug P1 into connector P1. Plug P2 into connector P2. Refer to Figure 2-15.
Step 5 Attach the clamp for the fan power cord to the chassis.
Step 6 For lower fan tray installation, attach the air intake bezel.
Step 7 When power is turned on, make sure all fans are running, and execute dsppwr.

This section contains information on making connections to AC and DC-powered systems.
![]() | Warning Before connecting power, make sure all IGX circuit breakers are off. |
The STRATM cabinet designed by StrataCom comes with attached studs (with hardware for securing a ground conductor to the studs) at the top and bottom of the cabinet for securing the grounding conductors. These studs a 1/4" by 20 threads per inch. Figure 2-17 shows the STRATM cabinet with the ground attachment studs in the upper and lower parts of the cabinet.
A stand-alone cabinet has provisions for mounting grounding conductors on the chassis by screws. In the stand-alone cabinet, this provision is a pair of captive nuts (threaded holes) for the screws on the mounting rail of the chassis (1/4" by 20 threads per inch). Figure 2-17 shows the location of the captive nuts and screws in a stand-alone cabinet for securing in the ground attachments.
The attachment points in the STRATM and stand-alone cabinets are indicated by a ground symbol on the cabinet near the point of attachment.
StrataCom recommends the following stacking order for attaching a ground conductor to the frame of a STRATM cabinet:
Step 1 Place an external, "toothed starwasher" onto the stud.
Step 2 Place the connector terminating the grounding conductor closed-loop ring or two-hole compression fitting onto the stud.
Step 3 Place another external, "toothed starwasher or lockwasher" onto the stud.
Step 4 Screw a nut onto the threaded stud.
StrataCom recommends the following stacking order for attaching a ground conductor to the frame of a standalone enclosure:
Step 1 Place an external, "tooth starwasher" onto the screw.
Step 2 Place the connector terminating the grounding conductor closed-loop ring or two-hole compression fitting.
Step 3 Place another external, "tooth starwasher or lockwasher."
Step 4 Screw the entire assembly into the captive nut in the mounting rail beneath the cover plate. See Figure 2-18 for an illustration of this stacking order in an IGX 16. Figure 2-19 shows the location of the frame bonding connection on an IGX 8.



StrataCom provides at least one, eight-foot (three meter) power cord with each AC Power Supply Assembly. To make AC power connections to the IGX:
Step 1 Make sure all AC and system power circuit breakers are in the OFF position.
Step 2 Make sure the AC plug wiring has the correct relationship. Figure 2-20 shows the voltage across the wires in an IGX 8 plug. Figure 2-22 shows the voltage across the wires in an IGX 16/32 plug.

Step 3 Plug the power cord into the IEC connector and tighten the screw on the clamping ring. See Figure 2-21 for an example of an IGX 8 and Figure 2-23 for an IGX 16.



Step 4 Plug the AC power cord into a single-phase wall outlet rated for a nominal voltage.
For an IGX 8, the AC voltage should be between 200 to 240 VAC or 100 to 120 VAC. The outlet must also be capable of supplying up to 12 Amps (13 Amps in the UK). The building circuit should be protected with a 15 or 20 Amp circuit breaker.
For an IGX 16 or 32, the AC voltage should be between 200 and 240 VAC. Each outlet must also be capable of supplying up to 16 Amps (13 Amps in the UK, where the plug has a built-in, 13 Amp fuse). In North America, the building circuit should be protected with a 20 Amp circuit breaker.
Step 5 For the dual power feed version, plug each power cord into a receptacle that connects to a separate building circuit to provide backup if one building circuit fails. Each building circuit should have a 15 or 20 Amp circuit breaker.
Step 6 The ground (green) wire of the AC power cord is connected to the IGX for safety ground. Make sure each AC receptacle in the building is grounded.
Step 7 In addition to the preceding, StrataCom recommends that you provide an AC power strip with at least four outlets. Place the strip near the IGX to supply optional modems, CSUs, DSUs, or test equipment. Be sure to connect this power strip to an AC source voltage that is standard for the region (for example, 115 VAC in North America or 230 VAC in Europe).
A system that uses a DC power source have one or two configurations, as follows:
Wiring is connected from one or two -48 VDC power sources to one or two DC PEMs per shelf. StrataCom does not provide the wire between the node and the source. Instead, the installer or customer must supply it. These wires should be capable of carrying 20 Amps. The diagrams on the pages that follow show DC wiring for single and redundant DC sources for all IGX models.




As the detailed steps on the following pages explain, installing DC power consists of attaching the three wires of the DC power source to a removable wiring block, then plugging that block into the connector on the PEM. The PEM is plugged into the PE-BC. Figure 2-28 is a view of a PE-BC (out of the card cage) with the PEM wired up and plugged into the PE-BC. Figure 2-28 shows a non-redundant DC power configuration. Note the blank plate that covers the unused connection.

![]() | Warning Remember that this is a positive ground system. Ensure that polarity of the DC input wiring is correct. Under certain conditions, connections with reversed polarity may trip the primary circuit breaker and/or damage the equipment. Make sure the circuit breaker is in the OFF position. |
To make a DC power connection:
Step 1 For both stand-alone systems, the cable guard (located at the right edge of the chassis) remains off until the system is ready to power up. Remove the cable guard by loosening the captive screw at its base then swinging it away from the chassis (do this latter movement holding the top of the cable guard in place while moving the bottom of it away from the chassis).
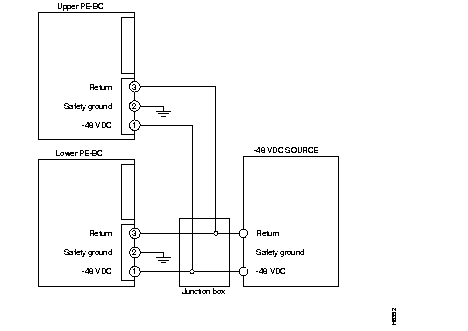
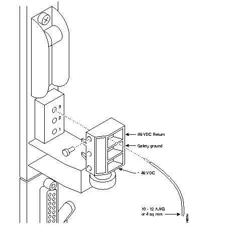
Step 2 Insert and secure the stripped ends of the wire in the wiring block according to the scheme in Figure 2-29 and Figure 2-30 . Figure 2-29 illustrates the polarity of each connection on the pluggable terminal block. The numbers start with 1 at the bottom and go to 3. The connection at the bottom is for the -48 VDC wire. The middle wire is Safety Ground. The connection at the top is for the positive return wire (for the -48 VDC). Figure 2-30 shows the assembly with an example wire and the screw that secures it in the pluggable wire block.

Step 3 Attach the pluggable terminal block to the receptacle on the PEM.
Step 4 Loop the DC wiring through the strain relief clamp.

![]() | Warning For personnel safety, the green or green/yellow wire must connect to safety (earth) ground at both the equipment and at the supply side of the DC wiring. |
Step 5 Connect the DC input wiring to a DC source capable of supplying at least 20 Amps (typical). The -48 VDC power source in the building should have a 25 A DC circuit breaker. The building's wiring should include an easily accessible disconnect device. Make sure the ground wire connects to a reliable building (earth) ground.
Step 6 Leave the cable guard off until power is on.
Step 7 Before you turn on the system power, check the supply voltage. Use the screws at positions 1 and 3 on the pluggable terminal block as a convenient measuring point. Also, check the impedance between the safety ground (screw at location 2 on the pluggable terminal block) and the chassis. It should be close to 0.
Step 8 Turn on the power, and check the voltage at the screws at positions 1 and 3 on the pluggable terminal block.
Step 9 Turn off the power, and go to the chapter titled "Card Installation and Node Startup."
|
|